Skip To Content

74R Stonebridge Lane

Durham, CT 06422
  • $1,061,000
  • STATUS: Active Under Contract
  • ON SITE: 202 Days
  • MLS #: 24106827
Under Contract
UPDATED: 137 min ago
$1,061,000
  • 5
    BEDS
  • 5.1
    ACRES
  • 4
    BATHS
  • 1
    1/2 BATHS
Type:
Single-Family Home
Built:
2025
County:
Area:

School Information

Elementary School:
High School:

Description

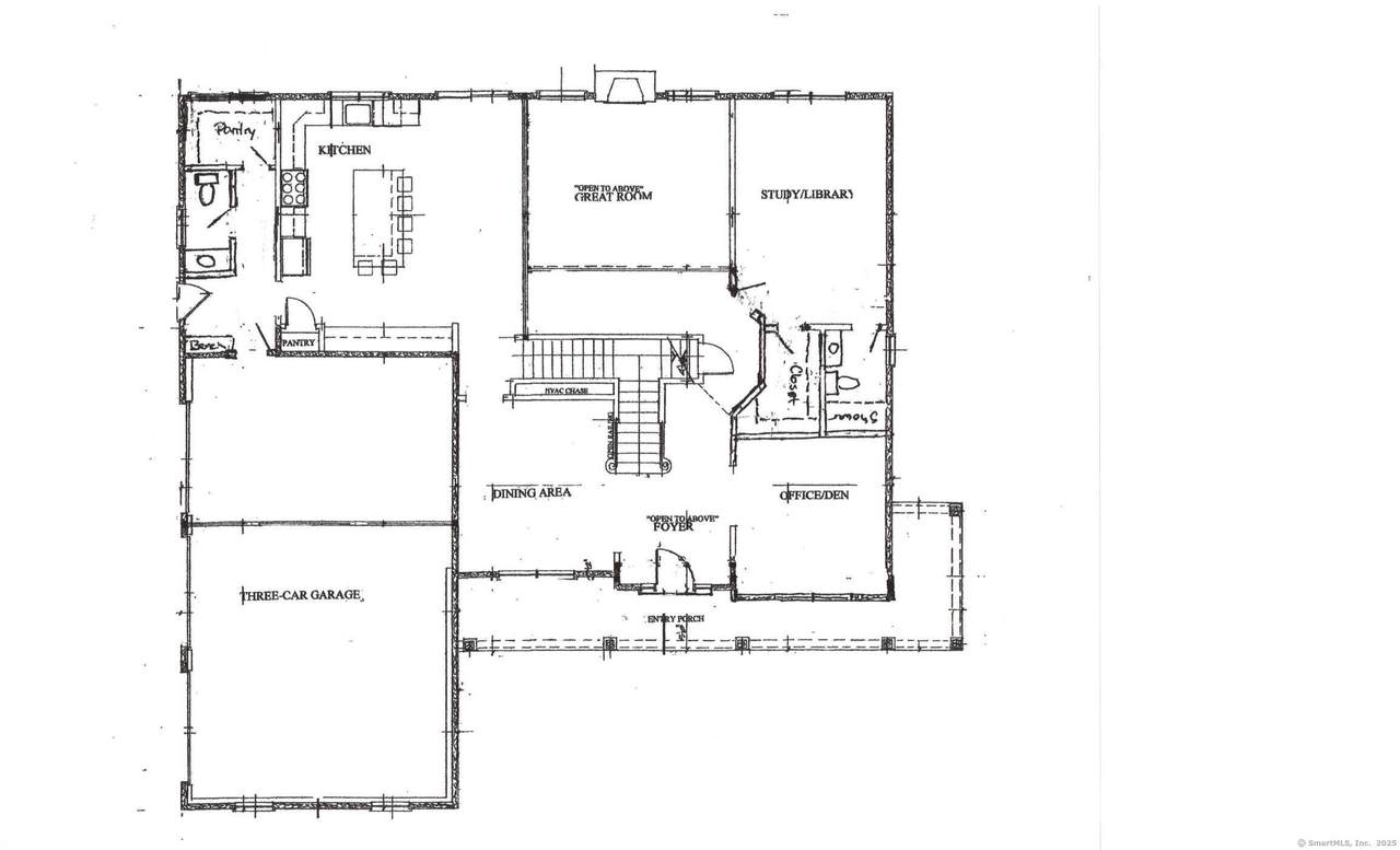
This beautiful, To Be Built, new construction home is the layout that you have been waiting for! At 4,011 square feet this house plan is the perfect size for any family. A very spacious home with 9 ft ceilings on the main level, and a beautiful cathedral ceiling in the Family Room that perfectly highlights the decorative propane fireplace. A very functional mudroom area right off the 3 car garage, with a 1/2 bath. The front foyer has a grand feel with the open ceiling and aesthetically pleasing split design stairs. Completing the first floor is a Dining Room, and a large Study/office. Additionally, this plan has the convenience of having both a first floor as well as a second floor Primary bedroom suite. Three additional bedrooms and a Laundry Room are to be found on the second floor. You may never want to leave the Primary bedroom, with a huge walk in closet and luxurious en-suite bath. One of the 3 remaining bedrooms has its own en-suite bath, convenient for overnight guests. THIS LOT IS ON RESERVATION

Monthly Payment Calculator



The data relating to real estate for sale on this website appears in part through the SMARTMLS Internet Data Exchange program, a voluntary cooperative exchange of property listing data between licensed real estate brokerage firms, and is provided by SMARTMLS through a licensing agreement. Listing information is from various brokers who participate in the SMARTMLS IDX program and not all listings may be visible on the site. The property information being provided on or through the website is for the personal, non-commercial use of consumers and such information may not be used for any purpose other than to identify prospective properties consumers may be interested in purchasing. Some properties which appear for sale on the website may no longer be available because they are for instance, under contract, sold or are no longer being offered for sale. Property information displayed is deemed reliable but is not guaranteed. Copyright 2026 SmartMLS, Inc. Data last updated: 2026-01-14T00:09:47.457.
www.nextlvlteam.com/homes/165248304
Print Image

74R Stonebridge Lane Durham, CT 06422

  • Price: $1,061,000
  • Status: Active Under Contract
  • On Site: 202 Days
  • Updated: 137 min ago
  • MLS #: 24106827
5
Beds
4
Baths
1
½ Baths
5.1
Acres
2025
Built
County:
Middlesex
Area:
Durham
Elementary School:
per board of ed
High School:
Coginchaug Regional
Property Description
This beautiful, To Be Built, new construction home is the layout that you have been waiting for! At 4,011 square feet this house plan is the perfect size for any family. A very spacious home with 9 ft ceilings on the main level, and a beautiful cathedral ceiling in the Family Room that perfectly highlights the decorative propane fireplace. A very functional mudroom area right off the 3 car garage, with a 1/2 bath. The front foyer has a grand feel with the open ceiling and aesthetically pleasing split design stairs. Completing the first floor is a Dining Room, and a large Study/office. Additionally, this plan has the convenience of having both a first floor as well as a second floor Primary bedroom suite. Three additional bedrooms and a Laundry Room are to be found on the second floor. You may never want to leave the Primary bedroom, with a huge walk in closet and luxurious en-suite bath. One of the 3 remaining bedrooms has its own en-suite bath, convenient for overnight guests. THIS LOT IS ON RESERVATION
Exterior Features

Direct Waterfront YN No Exterior Siding Vinyl Siding Garage And Parking Attached Garage Lot Description In SubdivisionLightly WoodedOn Cul-De-Sac Roof Information Asphalt Shingle Style Colonial Swimming Pool YN No Waterfront Description Not Applicable

Interior Features

Appliances Included Allowance Attic YN No Basement Description FullUnfinishedFull With Walk-Out Cooling System Central Air Fireplaces Total 1 Heat Type Hot Air Laundry Room Info Upper Level Rooms Dining Room (Main Level) Primary BR Suite (Upper Level) Bedroom (Upper Level) Eat-In Kitchen (Main Level) Office (Main Level) Bedroom (Main Level) Bedroom (Upper Level) Bedroom (Upper Level) Sq Ft Est Heated Above Grade 4011 Sq Ft Total 4011 Total Rooms 10

Property Features

Agent Owner YN Yes Bank Owned Property No Foundation Type Concrete Fuel Tank Location In Ground Heat Fuel Type Propane Home Owners Assocation No Home Warranty Offered YN Yes Hot Water Description Tankless Hotwater New Construction Type To Be Built Potential Short Sale No Sewage System Septic Tax Year July 2025-June 2026 Under Agreement Yn No Water Source Private Well Zoning FR

Listing information © 2026 Smart MLS
Listing provided courtesy of Dori Degennaro of William Raveis Real Estate: (860) 344-1658.


The data relating to real estate for sale on this website appears in part through the SMARTMLS Internet Data Exchange program, a voluntary cooperative exchange of property listing data between licensed real estate brokerage firms, and is provided by SMARTMLS through a licensing agreement. Listing information is from various brokers who participate in the SMARTMLS IDX program and not all listings may be visible on the site. The property information being provided on or through the website is for the personal, non-commercial use of consumers and such information may not be used for any purpose other than to identify prospective properties consumers may be interested in purchasing. Some properties which appear for sale on the website may no longer be available because they are for instance, under contract, sold or are no longer being offered for sale. Property information displayed is deemed reliable but is not guaranteed. Copyright 2026 SmartMLS, Inc. Data last updated: 2026-01-14T00:09:47.457.
 
https://bt-photos.global.ssl.fastly.net/ctmls/1280_boomver_1_24106827-1.jpg https://bt-photos.global.ssl.fastly.net/ctmls/1280_boomver_1_24106827-1.jpg
Logo
Next Level Team of RE/MAX ONE
212 Route 32
Uncasville CT, 06382